|
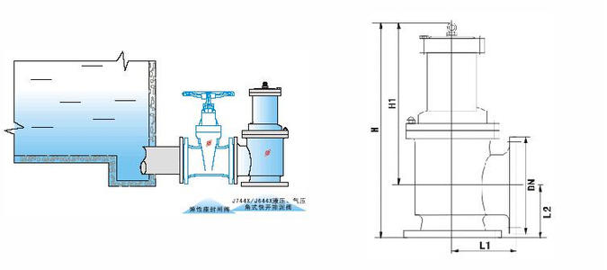
J744X液動角式排泥閥原理作用: J644X氣動角式排泥閥,J744X液動角式排泥閥又叫蓋閥,常用于城市水廠、污水處理廠的沉淀池底排放污泥用。J644X氣動角式排泥閥,J744X液動角式排泥閥的適用介質為原生污水,介質的溫度一般應小于50℃,其工作水深小于10米。J644X氣動角式排泥閥,J744X液動角式排泥閥的動力源主要有:手動、氣動、電動、液動;結構形式主要有:活塞、隔膜、角型。注意:排泥閥應安裝在原管線的較低點,并選用與排污水流成切線的排泥三通,還應考慮到排放過程中沖刷對附件基礎的影響,排泥閥安裝完畢后應及時關閉。 J644X氣動角式排泥閥,J744X液動角式排泥閥是一種由液壓源或氣動源作執行機構的角型截止類閥門。通常成排安裝在沉淀池底部外側壁,用以排除池底沉淀的泥砂和污物。該閥液壓缸之活塞為L形皮碗,密封性能好,經久耐用,閥門密封副亦為橡膠密封,無泄漏。可通過電動二位四通換向電磁閥實現遠程控制,操作方便,安全可靠。 J744X液動角式排泥閥性能特點: 氣動液動角式排泥閥升降方便快速,修理簡單,密封性能好,經久耐用,閥門密封副亦橡膠密封,無泄漏;可以排除池底泥污,也可安裝在工作介質水、氣、油等工業管道中,作截流用。 J744X液動角式排泥閥技術參數:
J744X液動角式排泥閥部件材質:
J744X液動角式排泥閥外形尺寸:
|
||||||||||||||||||||||||||||||||||||||||||||||||||||||||||||||||||||||||||||||||||||||||||||||||
-
啟閉方便迅速、省力、流體阻力小,可以經常操作。
-
具有體積小,重量輕,性能可靠,配套簡單,流通能力大。
-
常用于城市水廠、污水處理廠的沉淀池底排放污泥用。
-
閥門密封副亦橡膠密封,無泄漏。
-
升降方便快速,修理簡單,密封性能好,經久耐用
-
根據用戶提供的流量、壓力提供選型規格書及控制方案圖。


